
Prior to installing your mailbox post, call the post office which delivers your mail, for proper location.
Orrock Township Mailbox Policy states residents living in a cul-de-sac, must place their mailbox before the entrance or after the exit, from the cul-de-sac.
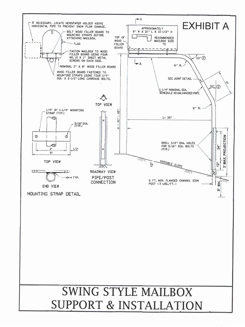
It is the policy of Orrock Township that the standard construction for supporting mailboxes is to be the swing-away mailbox support.
Big Lake Post Office phone: 763-263-2642
Zimmerman Post Office phone: 763-856-9540
Mailbox Policy with Exhibits (pdf)
Download
Copyright © 2023 Orrock Township - All Rights Reserved. This website was created as a public service for the Citizens of Orrock Township in the County of Sherburne, State of Minnesota. Every attempt is made to ensure the information on this site is accurate and current. information may be updated or changed at any time without notice. Official hard copies of policies, minutes and resolutions are available at the town hall and take precedence over the material found on this site. Please contact the township if you should discover any inaccuracies.
Neither Orrock Township, the Township Manager, the officers, employees nor agents of the Township warrant the accuracy of timeliness of any information provided within this website nor for information contained in third party hyperlinks.
- Orrock Town Board
We use cookies to analyze website traffic and optimize your website experience. By accepting our use of cookies, your data will be aggregated with all other user data.